$695,000
$699,999
0.7%For more information regarding the value of a property, please contact us for a free consultation.
18219 Blue Lake Way Boca Raton, FL 33498
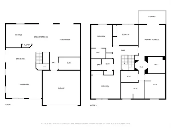
4 Beds
3.5 Baths
2,801 SqFt
Key Details
Sold Price $695,000
Property Type Single Family Home
Sub Type Single
Listing Status Sold
Purchase Type For Sale
Square Footage 2,801 sqft
Price per Sqft $248
Subdivision Boca Chase 09A
MLS Listing ID F10486521
Sold Date 07/28/25
Style No Pool/No Water
Bedrooms 4
Full Baths 3
Half Baths 1
Construction Status Resale
HOA Fees $147/mo
HOA Y/N 147
Year Built 1992
Annual Tax Amount $9,704
Tax Year 2023
Lot Size 8,228 Sqft
Property Sub-Type Single
Property Description
Price Improvement! New Floors and Baseboards! Welcome to this 4 bedroom 3.5 bathroom home, all bedrooms are conveniently located on the second floor. The primary bedroom features a balcony where you can take in views of the lake. The primary also boasts 2 large closets and 2 bathrooms. The heart of the home is the renovated kitchen, offering beautiful finishes and plenty of space. This home sits on a desirable corner lot with a fully fenced in yard. Impact windows add peace of mind. Enjoy the benefits of a low HOA and the peace of mind that comes with A rated schools. Community offers pool, tennis, basketball and a park.
Location
State FL
County Palm Beach County
Community Coral Bay
Area Palm Beach 4750; 4760; 4770; 4780; 4860; 4870; 488
Zoning RS
Rooms
Bedroom Description Master Bedroom Upstairs
Other Rooms Family Room
Interior
Interior Features First Floor Entry
Heating Central Heat
Cooling Central Cooling
Flooring Tile Floors
Equipment Dishwasher, Disposal, Dryer, Microwave, Refrigerator, Self Cleaning Oven, Washer
Appliance Dishwasher, Disposal, Dryer, Microwave, Refrigerator, Self Cleaning Oven, Washer
Exterior
Exterior Feature Fence
Garage Spaces 2.0
Waterfront Description Lake Front
View Garden View, Lake
Roof Type Curved/S-Tile Roof
Building
Lot Description Less Than 1/4 Acre Lot
Foundation Cbs Construction
Sewer Municipal Sewer
Water Municipal Water
Construction Status Resale
Others
HOA Fee Include 147
Senior Community No HOPA
Restrictions Assoc Approval Required
Acceptable Financing Cash, Conventional, FHA-Va Approved
Listing Terms Cash, Conventional, FHA-Va Approved
Special Listing Condition As Is
Read Less
Want to know what your home might be worth? Contact us for a FREE valuation!

Our team is ready to help you sell your home for the highest possible price ASAP

Bought with Florida Capital Realty






